Byggeboomet fortsætter: JM Byg ApS bygger 4 ejerboliger på Kjærsgårdvej
I disse måneder står Give i nybyggeriets tegn, idet der skyder boliger op næsten som paddehatte flere steder i byen. Det er mestendels lejeboliger, men nu kan du også erhverve dig en spritny ejerbolig. Det er JM Byg der bygger fire huse på Kjærsgårdsvej med udkørsel til Ringivevej.
Af Jim Hoff – jimhoff@voreslokalavis.dk
NYBYGGERI: Mulighederne for at flytte til Give i nyt byggeri har stort set aldrig været større end nu. Der skyder massevis af nybyggede boliger op flere steder i byen med “Golfbyen” som det ypperste eksempel.
Det er dog i stor udstrækning lejeboliger, det her drejer sig om, men nu er der også et marked for folk, der gerne vil eje deres nyerhvervede nybyggede bolig. Det er murerfirmaet JM Byg ApS, der i disse dage er i gang med at opføre 4 nye huse på Kjærsgårdsvej centralt i Give.
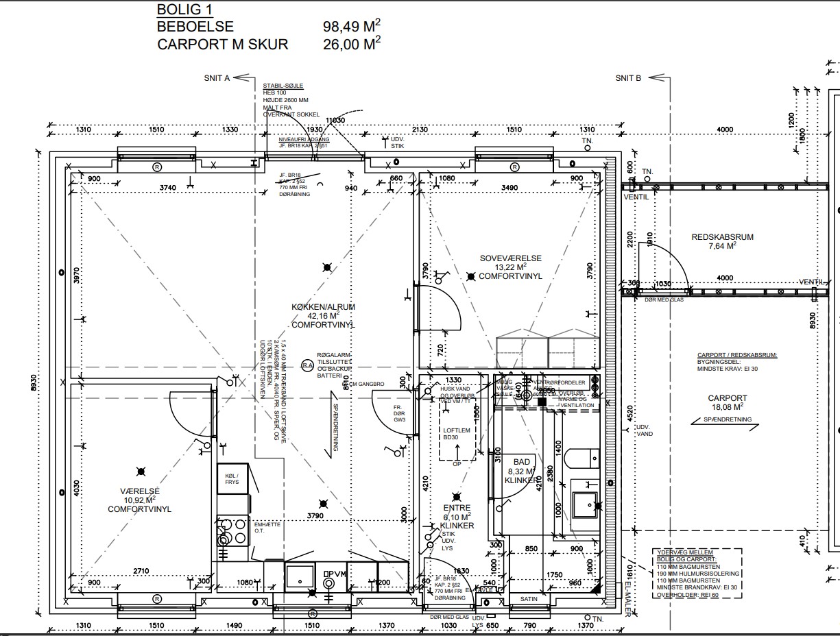
4 huse på 98 kvadratmeter
Det er Give Huset, der har tegnet husene, som alle 4 er på 98 kvadratmeter plus carport med skur på 29 kvadratmeter. Husene ligger med udkørsel til Ringivevej.
- Da vi stadig er ret tidlige i processen, kan man som køber godt få en del medindflydelse på byggeriet og inventaret. Men man skal gerne være hurtigt ude med at skrive købskontrakten under – jo hurtigere, desto større muligheder er der for, at man kan få noget medbestemmelse, siger Jørgen Pilgaard fra JM Byg Aps.
Han ejer firmaet sammen med Morten Warming Lund, og det er ejendomsmægler Maiken Nørtoft fra RealMæglerne i Give, der kommer til at stå for salget af de fire huse.
- I et stykke tid er det mest lejeboliger, der er blevet bygget her i byen. Men vi mærker også et behov for nye ejerboliger, og det er her Jørgen og Morten så kommer på banen med deres fore huse her på Kjærsgårdsvej. Bynært, nyt og energivenligt byggeri, som kommer til at bestå af en vinkelstue med køkken/alrum, 1 værelse, 1 soveværelse og med mulighed for et ekstra værelse. Dertil naturligvis også bad/bryggers plus entre, fortæller Maiken Nørtoft.

Arkitekttegning af et af husenes rumopdeling og mål. Grafik: Give Huset
Forventet indflytning til august
Huset er muret op indvendigt, og der er akustiklofter. Der er en lille græsplæne til alle husene samt flisebelægning. Forventet indflytning ligger omkring august 2024.
- Men skulle der vise sig en køber lynhurtigt med et ønske om at flytte hurtigere ind, kan vi godt rykke på det, så vi eventuelt snakker juni/juli måned med hensyn til indflytning, siger Jørgen Pilegaard.
Maiken kan fortælle, at hun har haft de første henvendelser på husene, og der er bestemt en vis nysgerrighed omkring projektet på Kjærsgårdsvej.
- Salgsmaterialet er snart helt klart, men allerede nu kan man roligt henvende sig og blive skrevet op til et hus eller generelt bare få mere at vide om husene. Maiken kan kontaktes på telefon 7023 2280, mobil 2479 0949 og på mail mai@mailreal.dk.

Det er indenfor det røde område på Kjærsgårdsvej, at de fire huse opføres. Foto: Jim Hoff

















































